OSRAM/Sylvania Site Issue - Bridge/Boston Streets

< Back to In the News

Welcome Page

2011    
Chapter 91 Citizen's Letter 10/20/2011  
Chapter 91 Citizen's Appendices 10/20/2011  
Chapter 91 Treadwell Letter 10/15/2011  
     

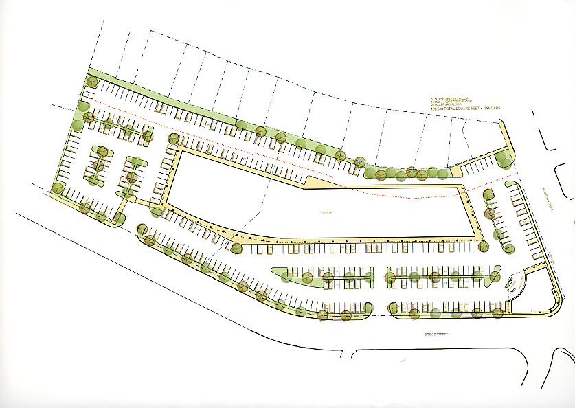
News 1/5/2010: New plans set forth. See Graphics See Applications. The developer held a meeting with the neighborhood, and presented basically the same plan that was set forth in Pctober, 2009. Additional details and graphics were presented, including submissions to the Planning Board, scheduled for discussion at the Planning Board meeting THURSDAY January 21, 2010.

News 10/27/2009: New plans set forth. See GraChapter 91 Citizens Letterphics The developer held a meeting with the neighborhood; the developer illustrated a new concept for the site. There is now one building with three components at the southwest corner. The plan now calls for a two-story health club at the corner of Bridge and Boston, a three-story glass atrium to the east, and a connecting four-story building at the East End. The four-story building will contain a senior center at the first floor level, with offices above. It was explained that at this point these concept sketches were for discussion purposes, and the concept will be further refined before the developer approaches the city boards that will for approval. The developer stated that refined plans will be available prior to those meetings. The site plan is changed slightly from the June 15, 2009 plan in that there is now one building at the southwest corner of the site. Almost everything else remains the same as was illustrated on June 15, 2009.

News 6/15/2009: New plans set forth. See Graphics. Parcel with building on the corner of Boston & Bridge Streets for Salem’s senior center and medical offices: They have made substantial changes to the buffer zone, making it 30-35 feet in most places (except where the retaining wall rises to about 14 feet at the left rear, eastern side, of the parcel) but two of the at properties at grade on the western (Boston Street end of the property) have no more than a 20 foot buffer from parked cars – which we asked them to increase. (Zoning requires a 50 foot buffer between residential and commercial properties so they will have to seek a variance.) The change in the buffer from 6 feet in some places on the previous plan was made possible because the City allowed them to eliminate a fire lane next to the building that had been thought to be required and now can be used for parking. The plans also show the donation of land along the Boston Street side of the property to the City to provide for an additional right turn lane onto Bridge Street (which in prior plans approved for the site) would be right turn onto Bridge Street.
New plan for Eastern end of parcel to replace the existing building: They presented a new plan for the adjacent parcel which they also own (where the marble counter top and car repair facilities now operate). They are reasonably far along in negotiations with an assisted living firm. The assisted living facility would have 55 rooms, with 70 beds (some rooms will be companion rooms with multiple beds). As the plan shows, it would be a U shaped building, sited right on the Bridge Street sidewalk with the open courtyard facing Federal Street properties. This new facility would require 50 parking spaces for staff, residents, visitors and service – and those spaces are unlikely to be filled most of the time. Sweetser said he expected to own this building for 10 years though the firm with whom they are contracting would have an option to purchase. The facility will not include nursing home services, but may include some Alzheimers patients. The architecture of this building will be similar to that of the Boston/Bridge Street building.
Concerns: In addition to the less than required buffer and the sea of parking on the site, another concern is the proximity of the entrance and exit from and onto Boston Street close behind the Minit Print business at the corner of Federal and Boston Streets. With the entrance road just 20 feet from the rear property line it may impede the ability of Minit Print customers to park on Boston Street in front of its shop. We recommended they consider eliminating the parking near the Boston St. entrance, increasing the buffer and reducing the danger from parked cars backing into the area immediately adjacent to a busy entrance. The foot print of building at the corner of Bridge and Boston with the senior center and medical offices above may be expanded to provide more medical office space and some ground level open (but partially covered) space. We asked that they increase green space throughout the site wherever possible. There was question raised as to whether the senior center will include a day care facility; David Sweetser has said the City has no plans for day care, nor would there be any at the anticipated assisted living facility. No details of drainage presented. It was also noted that medical tests and medical wastes will have to be picked up from the medical offices..
Statistics:
Stories & height: Both buildings expected to conform to the maximum 50 foot height required by zoning. The building on corner of Boston & Bridge will be 86,000 square feet & 3 stories. The assisted living facility will be 60,000 square feet and 3-4 stories depending on requirements still being finalized.
3 entrances/exits: On Boston St., an entrance and exit near Minit Print at the start of a new travel lane for right hand turns onto Bridge. A main entrance on Bridge Street between the two buildings, with both entrance and exit. An exit only to the left (East) side of the assisted living facility.
2 dumpster pads and loading docks, one each on the East side of the buildings, highly visible from Bridge St. – said to be screened but no details. Sweetser expected most deliveries would be made with mid to small sized trucks with an occasional semi trailer truck.
Parking: (These are as recorded even though they don’t total). Total 345 cars. 273 for the building on the corner of Bridge & Boston St.; 50 for the assisted living. 80 parking spaces for the senior center, leaving 223 for medical use. Sweetser said the City is also looking for up to 120 parking spaces for 4-6 special events each year expected to begin around 4-4:30; it is hoped the medical building uses will be less at that time. David Sweetser said he would not consider a garage because of cost, security and maintenance and because he did not think it would be attractive to the people using the facilities on the site.
Schedule: The developer said they plan to go before either the ZBA or the Planning Board in August with with groundbreaking most likely in March 2010,

News 9/21/2006: New office building proposed for portion of site. Now called 401 Bridge Street. Graphics

News 5/13/2006: Site plan issued by developers announced. "Gateway Center" No elevations or renderings available at this time.

News 11/30/2002. Apparently the site has been sold by Osram/Sylvania to a local group of developers. The City Councillor, Regina Flynn, has indicted that this group will be meeting with the adjacent neighborhoods to discuss the future plans for the site.

Osco Drug at the Osram Sylvania Site

The corner of Bridge and Boston Streets is the source of continuing controversy due to the OSCO Drug issue. The developers (Kennedy Group) is promoting the building of a drug store on the corner, and an office building to the east. This site is zoned Business Park Development. This zoning does not permit retail to be an authorized use.

Kennedy went to the ZBA (Zoning Board of Appeals) in December of 1998 and asked for a series of variances, among which was for a use variance. It was the opinion of the residents that the use variance could not be granted as it is not legal to do so in Massachusetts. The residents also were opposed to this type of use for many other reasons - it was too close to the historic neighborhood, did not respect the set backs of urban building, traffic increase and so on. The ZBA voted to allow the variance.

Some abutters have sued the ZBA, and they are supported by the Federal Street Neighborhood and others. The suit is in court, and is expected to take a few years to be adjudicated.

The developer then went to the Planning Board and after a long hearing process, the Board approved the plan with conditions. It should be noted that the Planning Board, before hearing the proposal, asked for a ruling from the city counsel as to whether they could decline to hear the plan. The Planning Board expressed reservations about hearing the plan until the legal aspects were clarified with the ZBA. The city counsel indicated that it was appropriate for the Board to hear the plan. The neighbors asked for many changes in the plan, including changes in siting, materials, and design. Despite the time that the Planning Board spent on the project, it is discouraging that they were not willing to recommend significant changes in the project, as has been required by many other communities which are dealing with the location of generic drug stores in historic areas.

 

A position paper is printed below:

by Meg Twohey and Betsy Burns

In December, 1998, residents who abut the Osram Sylvania site filed suit to overturn the decision of the Salem Zoning Board of Appeals issued in December which allows retail use in the form of an Osco Drug store on the Osram Sylvania site at the corner of Boston and Bridge Streets, one of Salem's major entrance corridors. The Osram Sylvania site is zoned for Business Park Development, where retail use is not allowed. It also directly abuts a portion of the McIntire Historic District.

In the next several years, it is likely that major redevelopment will take place along the Bridge Street corridor. The quality of use and design on this entrance corridor adjacent to the McIntire Historic District is of critical concern. The Federal Street Neighborhood Association has been active in supporting the abutters in their suit, and held a successful fund raiser in January to begin to raise funds needed for the legal fees for the suit. They expect that the total cost to reverse this decision could be as much as the cost for 376 Essex Street - close to $50,000.

HSI has consistently opposed granting a zoning variance at this site to allow retail use. John Wathne wrote to the Zoning Board of Appeals on behalf of HSI: "We are very concerned that this undermines the intent of the original zoning ordinances and City-wide master plan that developed the system and delineation of zoning that currently exists. We are also concerned that such "spot rezoning" sets a dangerous precedent for future development and zoning issues in the City and undermines the effectiveness of the Planning Board. This is especially critical where development abuts a nationally and locally registered historic district."

In February, the Salem Planning Board began hearings to review the Site Plan for the proposed Osco Drug Store and office building proposed by Kennedy Development for the site. (Kennedy Development previously developed PEP Boys on Highland Avenue.) . The site is viewed members of the Planning Board, as a "significant site which warrants a significant building." Staley McDermet has attended many of the Planning Board meetings on behalf of HSI.

Throughout the Planning Board hearings, traffic on Boston and Bridge Streets has been a central concern, particularly since a Walgreens is being developed directly across Boston Street from the proposed Osco Drug Store. This retail use could have a severe negative impact on the intersection of Boston and Bridge (already rated "F"), and on Flint and upper Federal Streets.

The Planning Board has also been concerned about the importance of the site as an entrance to Salem. They have made significant efforts to encourage the developer to make the site plan and development more sensitive to its urban context, although to date the developers have made no significant changes. The Federal Street Neighborhood is also concerned that the Osco Drug building and site design is a generic design characteristic of suburban retail sprawl which threatens the integrity of the McIntire Historic District.

[Site Manager's Note: The Planning Board hearings have been concluded, See Above]

 

< Back to In the News


Welcome Page | About Us | Products & Services | In the News | Ask the Experts | Guest Book | Job Opportunities